沖縄県南部
不動産売買

NAVI
Powered by 株式会社REGATE
BLOG
ブログ
> ブログ > 八重瀬町東風平 土地査定
不動産査定実務
八重瀬町東風平 土地査定
金城 貴士
株式会社REGATE 金城 貴士
2023年02月06日 12:55

【八重瀬町東風平 土地の不動産査定に行ってきました】

こんにちは!
㈱REGATEの金城です。
地元の繋がりでご縁があって東風平の土地の査定に行ってきました♪


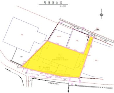
八重瀬町東風平土地の不動産査定&調査

本日査定をした物件の概要はこんな感じです。

市街化区域
第一種低層住居専用地域
建蔽率50%
容積率100%
高低差の無い平坦地。

敷地面積など詳細についてはプライバシー保護のために伏せます。

 

1.現地の確認
周辺環境は静かな住宅地。

小学校にも近く利便性の高い土地です。

 

 

2.近隣の取引事例など
東風平エリアの住宅用地相場が約40万円前後で推移していて、本土地も同様の価格帯での成約が見込めます。

 

3.地域性
伊覇区画整理地の近くで八重瀬町外からの流入も見込める地域。

アパート建築や建売住宅も多い人気のエリアです。


査定結果は?

査定結果は7100万円(坪単価40万円)で算出しました。
平坦地、土地の広さなどを加味するともっと強気の査定も可能です。

仏壇の移動や相続登記など売却までにはやらないといけないタスクがありますが、表に売り出す前に早々に買い手がつくものと判断しました。

不動産査定、売却はお任せくださいませ!

では~
—————————————-
不動産の価格を徹底的に調査するために弊社では不動産の売れ行きを毎日収集しています。
不動産売買マップ
※毎日、宜野湾市、浦添市、那覇市、西原町、南風原町、与那原町、豊見城市、糸満市、八重瀬町、南城市の不動産の売り出し事例を収集しています。

不動産の最新情報はSNSでご紹介していきます!フォローお願いします^^
友だち追加

↓シェアといいねをいただけたら励みになります♪

この記事を書いた人
株式会社REGATE 金城 貴士

沖縄県南部地域の不動産売買に関する事を思うままに書いています。
お孫さんの代までお付き合いできる不動産屋さんとして「紹介率No1」を目指します。
不動産に関するご質問など随時個別にご対応させていただきます!お気軽にお問い合わせください!

【成約御礼】那覇市宇栄原1丁目 売り地
前の記事
【成約御礼】那覇市宇栄原1丁目 売り地
【成約御礼】南城市玉城百名 海が見える家具家電付き戸建て
次の記事
【成約御礼】南城市玉城百名 海が見える家具家電付き戸建て
一覧に戻る

あなたの不動産売買を全力応援

不動産に関するお悩みを無料で相談できます。まずはお気軽にお問い合わせください。
チャット形式で、必要事項を入力していただくだけで、すぐに査定結果をお知らせします。